Fundraising for the Alpha Psi chapter of Alpha Delta Pi’s Diamond Dining Room.
About the Project
The Diamond Dining Room Fundraising Campaign is an investment for the next generation of Alpha Psi sisters. This addition to our historic house will create a shared space to celebrate community, education, and sisterhood. The project also includes four individual Study Pods, an exercise room, and solar panels—enhancements that support academic success, wellness, and sustainability.
Concept
Frequently Asked Questions
-
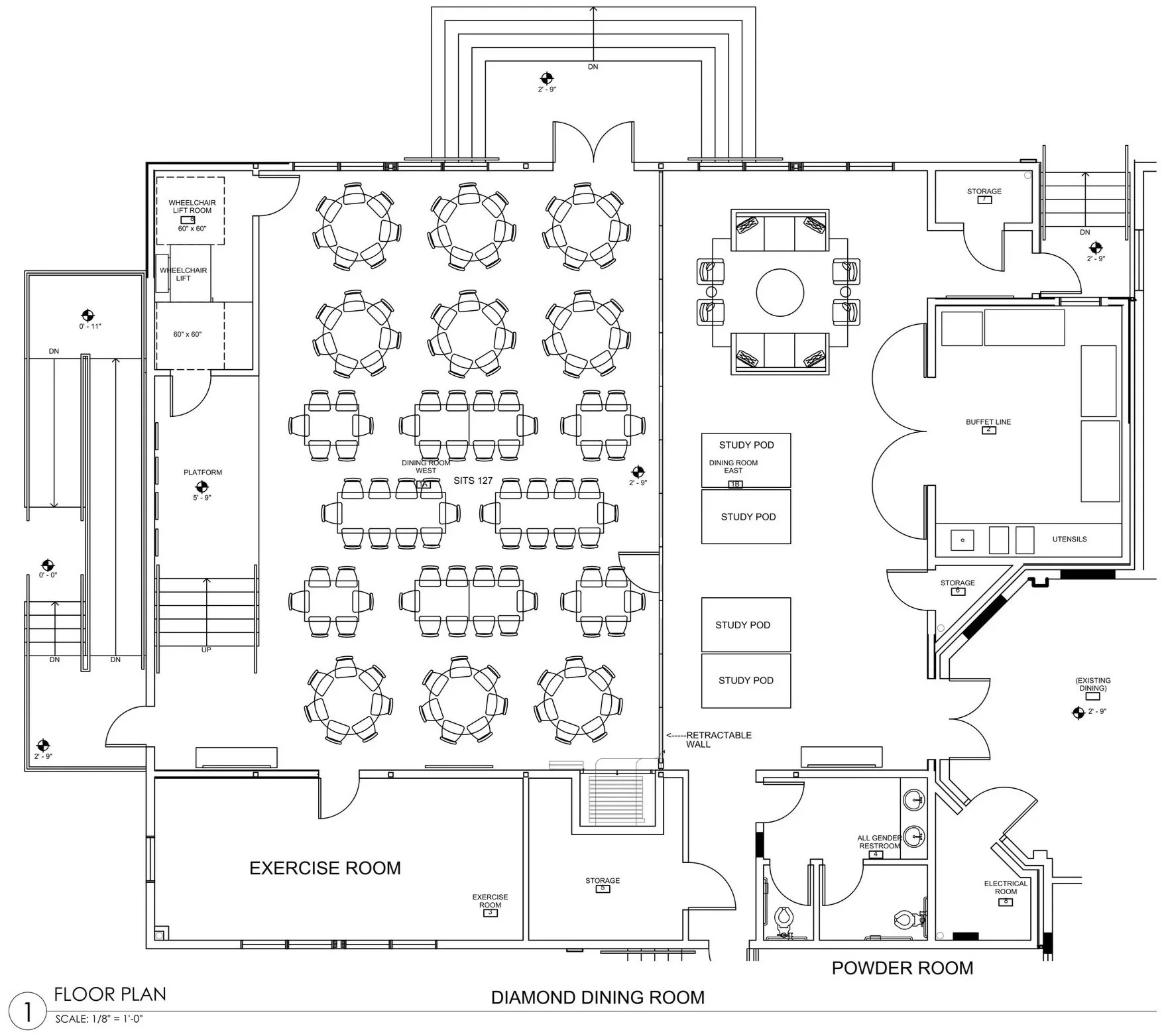
The new Diamond Dining Room (DDR) is approximately 3,800 square feet in size. It is a rectangular-shaped building which is replacing the Lower Dining Room (LDR). The new building will sit on the same site as the LDR but it will be almost four times the size (extending out towards 28th street and much closer to the Tri-Delta sorority house). The new DDR was built to accommodate seating for 120 people at round and rectangle tables for dining. A movable partition was built into the room to enable the room to be divided into two separate rooms, so one section of the room can be used for dining while the other part of the room is set up for lounging and studying. The room will also have a stage at the back (west side) of the room for members to hold their meetings or for guest speakers. The room will also have moveable "study pods" for use for studying and meeting with groups of 4 or less people. Finally, the room will include a new guest powder room and an exercise area. The building will also include a new ADA access, which will allow a person to gain access to the entire first floor of the Alpha Psi sorority house without having to go up any stairs. Additionally, solar panels have been installed on the roof of the new building which will enable the Alpha Psi House Corporation to rely on solar energy for future energy needs!
-
The project commenced in May 2025, with the demolition of the existing Lower Dining Room. As of February 1, 2026, the project is about 70% complete. The project is expected to be completed in May 2026.
-
The total cost of the project is estimated to cost approximately $2,750,000. This cost includes architectural designs, engineering plans, construction, installation of fire and alarm systems, and furnishings.
-
The project will be funded using a variety of resources. First, the Alpha Psi House Corporation had accumulated almost $1,000,000 in its savings accounts through the collection of Building Fund Fees from active (Delta) members over the past 30 years. Most of this money has already been expended to pay for the architectural, engineering, and early construction costs. Second, a loan of $1.7M was secured from Columbia Bank. Third, the Alpha Psi House Corporation will be asking its alumnae to donate money to help pay for the project and pay off the loan. A fundraising campaign, the “Diamond Dining Room Fundraising” (or “DDR Fund”) campaign, is set to launch in February 2026.
-
The Diamond Dining Room Fundraising campaign has a goal to raise a minimum of $1,750,000 from Alpha Psi Alumnae. There will be three different strategies for the fundraising campaign. The first will be identifying alumnae who are willing to donate money for “naming opportunities” of various rooms and objects in the new DDR. As of this time, 14 different naming opportunities, at $25,000 each, have been identified. They include the new powder room bathroom (2), the exercise room (2), the stage area (2), the buffet/servery area (2), the study pods (4), the front door/windows (1), and a bench on the front stoop (1). The second area will be to try to get every pledge class to pool monetary donations from pledge sisters of that pledge class towards a total goal of $10,000 for name recognition on a “Diamond Donor Wall.” The third area will be to identify other alumnae who are willing to support our project with monetary donations. A special “Grand Opening Dedication” event will be held for alumnae who donate at the $10,000 level or higher. Donations can be made over a two-year time period.
-
Donations made to the Diamond Dining Room Fundraising campaign (the “DDR Fund”) will go into a new bank account the Alpha Psi House Corporation has established, and these funds will GO DIRECTLY TO PAYING OFF THE LOAN WITH COLUMBIA BANK.
-
The Alpha Psi of Alpha Delta Pi House Corporation, the entity which owns the property located at 814 West 28th Street, is a designated as a 501(c)(7) corporation with the state of California, which means that we are a non-profit organization, but we do not have the tax-deductible status of a 501(c)(3) organization. Hence, monetary donations made directly to the DDR Fund would not be tax deductible. However, we do have a Alpha Psi Educational Fund set up through the Alpha Delta Pi Foundation, and money donated through the Foundation to this account is tax-deductible and can be used for the Alpha Psi House Corporation for items which are determined to be of an “educational” nature.
-
The Alpha Psi House Corporation can only accept monetary donations. Other types of non-monetary donations (e.g. goods, services, or time/labor) cannot be accepted.
-
Yes, donations will be accepted in honor of or in the memory of someone else.
-
If you are interested in volunteering at the Alpha Psi Chapter in an Advisory position, please contact Kerry Maines at adpi.alphapsi.eca@gmail.com. If you are interested in in volunteering with the Alpha Psi House Corporation, please contact Kristen von KleinSmid at kvonkleinsmid@gmail.com.
Concept
Let’s Stay in Touch

